

1室1厅1卫
约480万/套
均价
39344元/平
建面
122m²
朝向
北
分布
-
描述
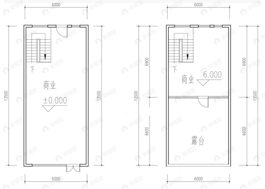
【格局形态】户型开间进深比例合理,没有溢出的边角,居住起来较为舒适。 【功能分区】动静分区,在房间休息或学习时,也不会受到动区声音的干扰。
所属楼盘
曲水憩园
项目地址
光谷四路与神墩三路交汇处
楼盘信息仅供参考,请以开发商公示为准
平台展示的房源、户型图等信息由第三方提供或根据第三方提供的资料提供的非标准图样、数据,仅供参考,具体以房产证载明信息、您委托的专业机构测量结果或房屋交易合同中披露的信息为准,请您谨慎核查。




