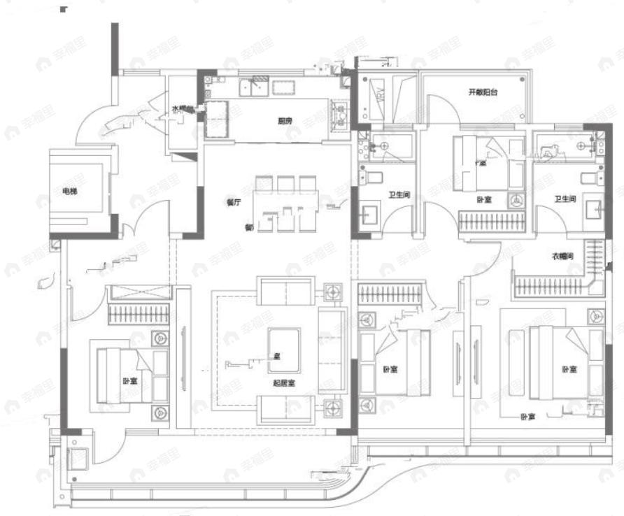
灵山湾悦府4室2厅2卫户型图灵山湾悦府4室2厅2卫户型图

4室2厅2卫

在售

500万/套

均价

30120元/平

建面

166m²

朝向

分布

-

描述

【采光通风】南北方向均有窗,两面采光,开窗时形成对流,给房间通风换气。

所属楼盘

灵山湾悦府

项目地址

辛屯山路与蓝湾漫道交汇处

楼盘信息仅供参考,请以开发商公示为准
平台展示的房源、户型图等信息由第三方提供或根据第三方提供的资料提供的非标准图样、数据,仅供参考,具体以房产证载明信息、您委托的专业机构测量结果或房屋交易合同中披露的信息为准,请您谨慎核查。