
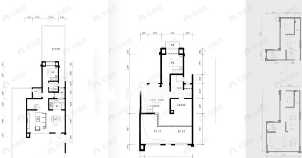
4室2厅3卫
约228万/套
均价
15405元/平
建面
148m²
朝向
南|北
分布
S25-1/06地块5幢、S17/04地块6幢
描述
【采光通风】此房型为全明户型,南北通透,能充分进行采光通风。 【格局形态】公摊面积大,会影响住宅使用面积。
所属楼盘
保利大国璟
项目地址
尚文大道666号
楼盘信息仅供参考,请以开发商公示为准
平台展示的房源、户型图等信息由第三方提供或根据第三方提供的资料提供的非标准图样、数据,仅供参考,具体以房产证载明信息、您委托的专业机构测量结果或房屋交易合同中披露的信息为准,请您谨慎核查。




