
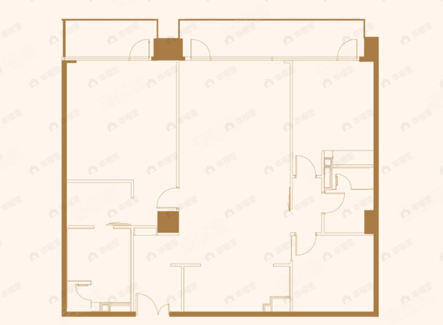
1室2厅2卫
约2834万/套
均价
145333元/平
建面
195m²
朝向
北
分布
1#
描述
【采光通风】客厅朝南日照足,光线好,冬季在客厅坐一坐让人有温暖的感觉。 【格局形态】该户型隐私性好,整体设计保证了住户的私密性。居住更加舒适 【功能分区】动静分离,能放心的在动区活动,不用担心打扰到休息或学习的人。
所属楼盘
长安太和1号楼
项目地址
长安街与朝阳门南小街交汇处建国门大街甲11号
楼盘信息仅供参考,请以开发商公示为准
平台展示的房源、户型图等信息由第三方提供或根据第三方提供的资料提供的非标准图样、数据,仅供参考,具体以房产证载明信息、您委托的专业机构测量结果或房屋交易合同中披露的信息为准,请您谨慎核查。

