

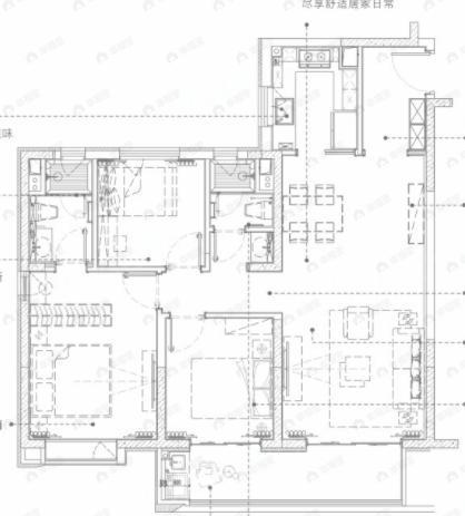
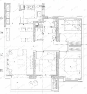
3室2厅2卫
约129万/套
均价
11120元/平
建面
116m²
朝向
南
分布
-
描述
【采光通风】南北方向均有窗,开窗可使空气更快流动,南北房间冷热交叉循环。 【功能分区】动静分离,能放心的在动区活动,不用担心打扰到休息或学习的人。
所属楼盘
国润当代境MOMA
项目地址
咸平路与渭阳西路交汇处西北角
楼盘信息仅供参考,请以开发商公示为准
平台展示的房源、户型图等信息由第三方提供或根据第三方提供的资料提供的非标准图样、数据,仅供参考,具体以房产证载明信息、您委托的专业机构测量结果或房屋交易合同中披露的信息为准,请您谨慎核查。



