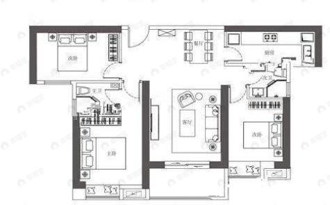
恒韵府3室2厅2卫户型图恒韵府3室2厅2卫户型图

3室2厅2卫

在售

271万/套

均价

19781元/平

建面

137m²

朝向

分布

8、3、5

描述

【采光通风】每个房间都有窗户更利于通风采光,避免房间潮湿和闷热的问题。

所属楼盘

恒韵府

项目地址

汉阳大道与江城大道交汇处4号线五里墩站D

楼盘信息仅供参考,请以开发商公示为准
平台展示的房源、户型图等信息由第三方提供或根据第三方提供的资料提供的非标准图样、数据,仅供参考,具体以房产证载明信息、您委托的专业机构测量结果或房屋交易合同中披露的信息为准,请您谨慎核查。