

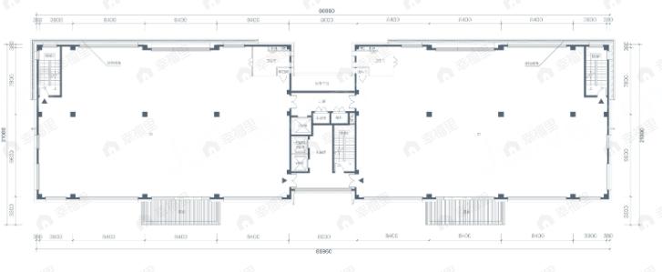
1室
约1400万/套
均价
23372元/平
建面
599m²
朝向
南|北
分布
15#办公商业楼、29#办公商业楼、1#办公商业楼、2#办公商业楼、3#办公商业楼、32#办公商业楼、33#办公商业楼、34#办公商业楼、35#办公商业楼、5#办公商业楼、4#办公商业楼、36#办公商业楼、6#办公商业楼
所属楼盘
首开富力十号国际
项目地址
京承高速8号出口未来科学城出口向北2公里高白路西侧
楼盘信息仅供参考,请以开发商公示为准
平台展示的房源、户型图等信息由第三方提供或根据第三方提供的资料提供的非标准图样、数据,仅供参考,具体以房产证载明信息、您委托的专业机构测量结果或房屋交易合同中披露的信息为准,请您谨慎核查。


