
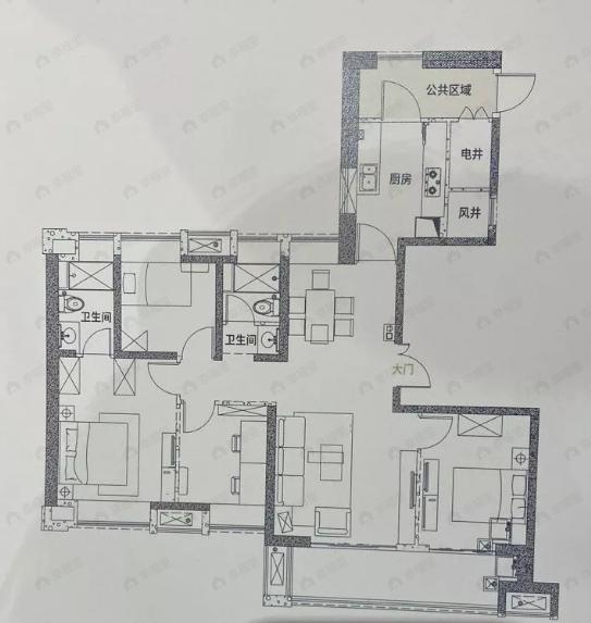
3室2厅2卫
约156万/套
均价
12000元/平
建面
130m²
朝向
南|北
分布
8号楼、9号楼
描述
【采光通风】南北方向均有窗,开窗可使空气更快流动,南北房间冷热交叉循环。每个房间都有采光通风的窗户,让整个房子都很通透明亮。 【功能分区】动静分区,在房间休息或学习时,也不会受到动区声音的干扰。户型动线分布合理,活动便捷,节省时间的同时提高了私密性。
所属楼盘
龙湖春江郦城
项目地址
长丰大道与古田二路交汇处
楼盘信息仅供参考,请以开发商公示为准
平台展示的房源、户型图等信息由第三方提供或根据第三方提供的资料提供的非标准图样、数据,仅供参考,具体以房产证载明信息、您委托的专业机构测量结果或房屋交易合同中披露的信息为准,请您谨慎核查。



