

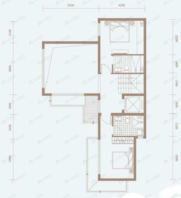
4室2厅4卫
约1300万/套
均价
33248元/平
建面
391m²
朝向
北|南
分布
-
描述
【采光通风】客厅朝南,保证客厅可以有充足的阳光照射,使客厅更加明亮。 【格局形态】户型方正,使空间可以更好的布局使用,便于后期装修及摆放家具。 【功能分区】动静分区,在房间休息或学习时,也不会受到动区声音的干扰。
所属楼盘
顺鑫颐和天璟
项目地址
右堤路与昌金路交汇向北200米
楼盘信息仅供参考,请以开发商公示为准
平台展示的房源、户型图等信息由第三方提供或根据第三方提供的资料提供的非标准图样、数据,仅供参考,具体以房产证载明信息、您委托的专业机构测量结果或房屋交易合同中披露的信息为准,请您谨慎核查。


