

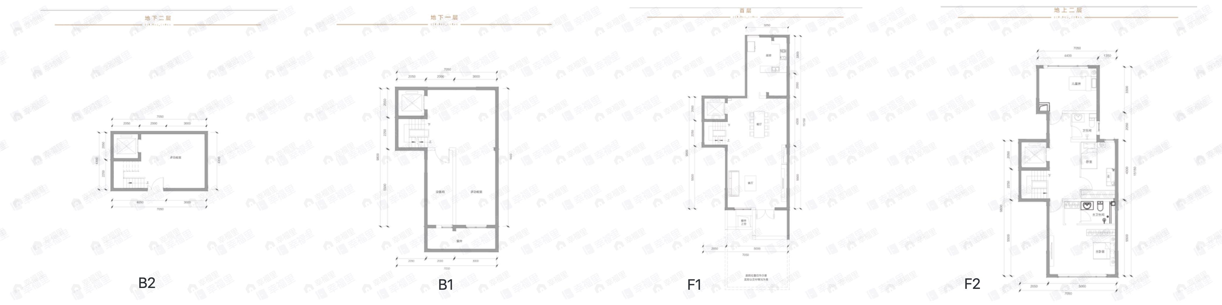
3室4厅3卫
约1365万/套
均价
55040元/平
建面
248m²
朝向
北|南
分布
-
描述
【采光通风】房子南北方向均有窗户,打开窗户可使空气在房间中更快的流动,南北房间冷热交叉循环,有利于散热。每个房间都有采光通风的窗户,让整个房子都很通透明亮。 【格局形态】户型格局较方正,使整个空间可以得到更好的利用,增加空间利用率,便于后期装修及摆放家具。 【功能分区】该户型动线分布合理,三条动线产生交叉较少,且每条动线距离适中,活动便捷,节省时间的同时提高了私密性。
所属楼盘
鲁能格拉斯小镇
项目地址
北京市通州区东北五环京平高速壁富路出口往南2公里
楼盘信息仅供参考,请以开发商公示为准
平台展示的房源、户型图等信息由第三方提供或根据第三方提供的资料提供的非标准图样、数据,仅供参考,具体以房产证载明信息、您委托的专业机构测量结果或房屋交易合同中披露的信息为准,请您谨慎核查。



