

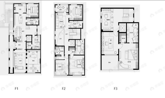
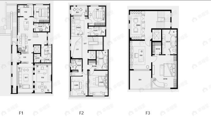
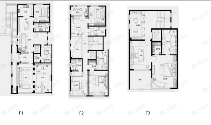
5室3厅5卫
约4547万/套
均价
91488元/平
建面
497m²
朝向
南
分布
-
描述
【采光通风】南北方向均有窗,开窗可使空气更快流动,南北房间冷热交叉循环。 【格局形态】户型隐私性好,整体设计保证了住户的私密性,居住更加安心舒适。
所属楼盘
玺萌壹號院
项目地址
西南三环嘉园路与镇国寺北街交叉口
楼盘信息仅供参考,请以开发商公示为准
平台展示的房源、户型图等信息由第三方提供或根据第三方提供的资料提供的非标准图样、数据,仅供参考,具体以房产证载明信息、您委托的专业机构测量结果或房屋交易合同中披露的信息为准,请您谨慎核查。




