

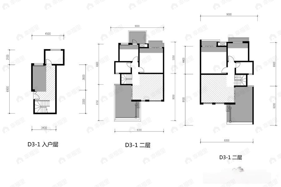
2室2厅1卫
约71万/套
均价
8800元/平
建面
81m²
朝向
南
分布
-
描述
【采光通风】南北方向均有窗,两面采光,开窗时形成对流,给房间通风换气。客厅朝南日照足,光线好,冬季在客厅坐一坐让人有温暖的感觉。 【功能分区】户型动线分布合理,活动便捷,节省时间的同时提高了私密性。
所属楼盘
龙湖小院青城
项目地址
大山路2号
楼盘信息仅供参考,请以开发商公示为准
平台展示的房源、户型图等信息由第三方提供或根据第三方提供的资料提供的非标准图样、数据,仅供参考,具体以房产证载明信息、您委托的专业机构测量结果或房屋交易合同中披露的信息为准,请您谨慎核查。




