
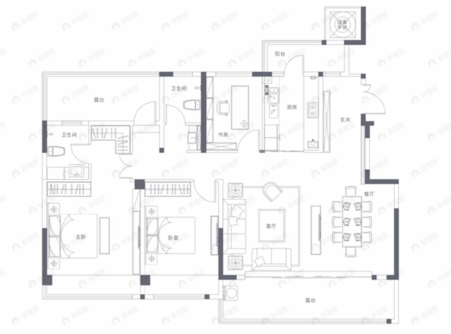
3室2厅2卫
约108万/套
均价
8780元/平
建面
123m²
朝向
南
分布
-
描述
【采光通风】每个房间都有采光通风的窗户,让整个房子都很通透明亮。 【格局形态】户型方正,使空间可以更好的布局使用,便于后期装修及摆放家具。 【功能分区】干湿分离,洗漱和上卫生间可以互不干扰,提升居住便利度。
所属楼盘
永丰乐境
项目地址
荥泽东一路与健康大道东南
楼盘信息仅供参考,请以开发商公示为准
平台展示的房源、户型图等信息由第三方提供或根据第三方提供的资料提供的非标准图样、数据,仅供参考,具体以房产证载明信息、您委托的专业机构测量结果或房屋交易合同中披露的信息为准,请您谨慎核查。


