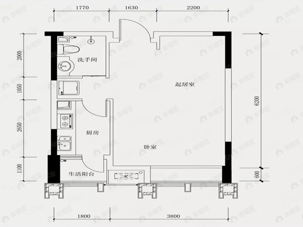
1室1厅1卫
售罄
售价待定
均价
建面
34m²
朝向
南|北
分布
-
描述
【格局形态】户型方正,使空间可以更好的布局使用,便于后期装修及摆放家具。
所属楼盘
天晋
项目地址
同茂大道38号
2室2厅1卫 72平
2室2厅2卫 95平
3室2厅2卫 113平
4室2厅2卫 134平