选好房,就上幸福里找房
立即打开
VR
图片
1/12

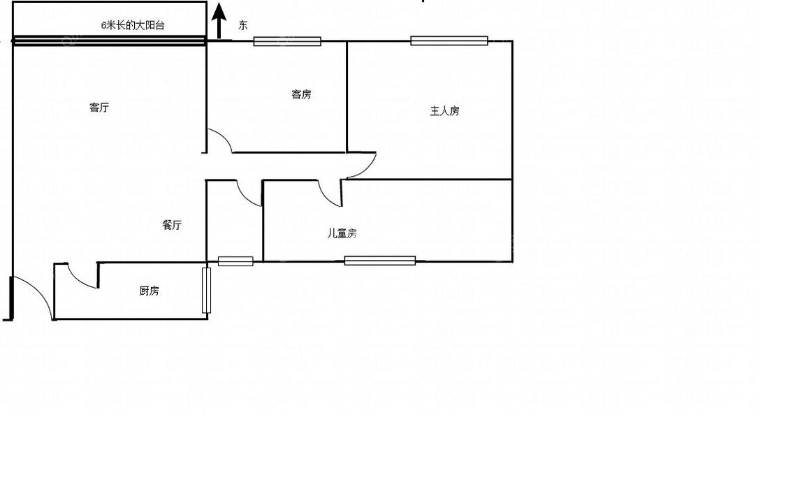
3室2厅 田德花园(A区)

有电梯
临近学校
300万
售价
3室2厅
房型
105.09平
建筑面积
正顺地产官方提供

周边配套

详情
位置
逸仙路268号
交通
教育
医疗
生活
休闲
前山小学(前山街道)
427m
明珠商业广场(停运高新区文旅专线2号线;16路;18路;31路;36路;8路;8路21:30后;931路;B7路环线;B8路环线;B9路;G10路;珠中001线)
575m
莲塘(明珠南路2051号)
627m

小区行情周报

详情
持平
咨询小区历史成交价
去咨询
免责声明:房源所示图片及其他信息仅供参考,购房时请以房本信息为准。图片、VR等房屋信息由房源发布机构发布,如有侵权等情况,请在房源展示图片右下侧点击“反馈”联系幸福里找房平台处理。幸福里找房平台禁止经纪人/咨询师“返佣返现”,请您警惕。反馈