选好房,就上幸福里找房
立即打开
1/15
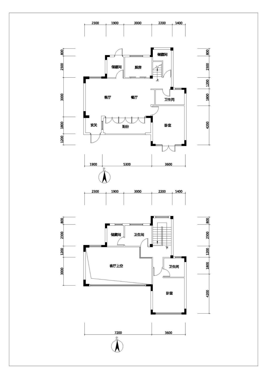
3室2厅 融创凤鸣桃花
反馈
降
5.0万
别墅
110万
售价
3室2厅
房型
133平
建筑面积
单价
8270元/平
挂牌
2023-03-10
楼层
低楼层/共2层
朝向
南
装修
毛坯
电梯
无电梯
类型
别墅
权属
商品房
小区
融创凤鸣桃花(贾汪-贾汪周边)
提示
签订正式租房/购房合同前切勿支付任何费用
驰润房地产官方提供
关注房源动态,掌握一手信息
关注动态
融创凤鸣桃花
详情
小区行情周报
详情
持平
咨询小区历史成交价
去咨询
免责声明:房源所示图片及其他信息仅供参考,购房时请以房本信息为准。图片、VR等房屋信息由房源发布机构发布,如有侵权等情况,请在房源展示图片右下侧点击“反馈”联系幸福里找房平台处理。幸福里找房平台禁止经纪人/咨询师“返佣返现”,请您警惕。
反馈