选好房,就上幸福里找房
立即打开
1/13
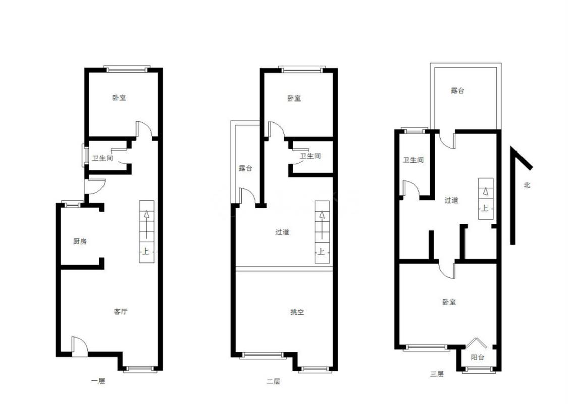
4室3厅 枫林天下
反馈
楼龄新
满两年
户型方正
268万
售价
4室3厅
房型
162.63平
建筑面积
单价
16479元/平
挂牌
2025-05-13
楼层
低楼层/共3层
朝向
南
装修
毛坯
电梯
无电梯
楼型
板楼
类型
住宅
权属
商品房
年代
2019年
小区
枫林天下(铜山-大学路)
提示
签订正式租房/购房合同前切勿支付任何费用
铜山区共筑房产官方提供
关注房源动态,掌握一手信息
关注动态
周边配套
详情
位置
大学路徐林村
交通
教育
医疗
生活
休闲
第一人民医院(在建4号线)
303m
桥上村(在建4号线)
1.1km
湘江路(在建4号线)
1.6km
枫林天下
详情
小区行情周报
详情
持平
咨询小区历史成交价
去咨询
免责声明:房源所示图片及其他信息仅供参考,购房时请以房本信息为准。图片、VR等房屋信息由房源发布机构发布,如有侵权等情况,请在房源展示图片右下侧点击“反馈”联系幸福里找房平台处理。幸福里找房平台禁止经纪人/咨询师“返佣返现”,请您警惕。
反馈