选好房,就上幸福里找房
立即打开
1/15
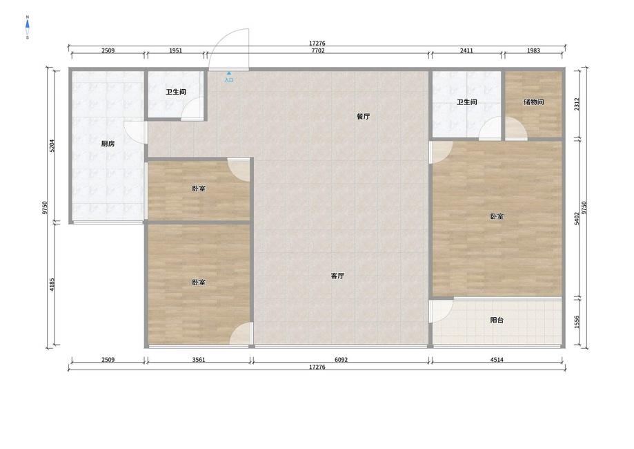
3室2厅 海宏一号C区
反馈
有电梯
125万
售价
3室2厅
房型
147平
建筑面积
单价
8503元/平
挂牌
2023-04-02
楼层
中楼层/共34层
朝向
南
装修
毛坯
电梯
有电梯
类型
住宅
小区
海宏一号C区(城西-海湖新区)
提示
签订正式租房/购房合同前切勿支付任何费用
好管家房屋官方提供
关注房源动态,掌握一手信息
关注动态
周边配套
详情
位置
文亭南巷,近海晏路
交通
教育
医疗
生活
休闲
五四西路西口(104路;14路;24路;30路;42路;51路附线内环;51路附线外环;58路;802路;82路;9001路/9路高峰区间车;919路;9路;K4路;夜班503路;游1路)
901m
新华联广场(停运夜班503路;51路;58路;6路;803路)
963m
文博路口(西宁市城西区)
965m
海宏一号C区
详情
小区行情周报
详情
持平
咨询小区历史成交价
去咨询
免责声明:房源所示图片及其他信息仅供参考,购房时请以房本信息为准。图片、VR等房屋信息由房源发布机构发布,如有侵权等情况,请在房源展示图片右下侧点击“反馈”联系幸福里找房平台处理。幸福里找房平台禁止经纪人/咨询师“返佣返现”,请您警惕。
反馈