省心挑好房,先上幸福里
立即打开
1/13
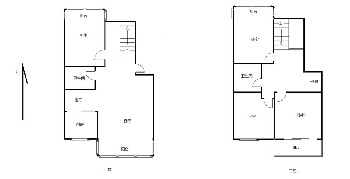
4室2厅 悦华公寓
反馈
品质改善
唯一住房
南北通透
满五年
328万
售价
4室2厅
房型
145.18平
建筑面积
单价
22592元/平
挂牌
2023-10-27
楼层
低楼层/共1层
朝向
南北
装修
精装修
电梯
无电梯
类型
住宅
权属
商品房
年代
2000年
小区
悦华公寓(湖里-悦华路)
提示
签订正式租房/购房合同前切勿支付任何费用
诺家官方提供
关注房源动态,掌握一手信息
关注动态
周边配套
详情
位置
悦华路107-141号
交通
教育
医疗
生活
休闲
华荣路(3号线)
339m
湖里公园(3号线)
853m
火炬园(1号线)
1.2km
悦华公寓
详情
小区行情周报
详情
持平
咨询小区历史成交价
去咨询
免责声明:房源所示图片及其他信息仅供参考,购房时请以房本信息为准。图片、VR等房屋信息由房源发布机构发布,如有侵权等情况,请在房源展示图片右下侧点击“反馈”联系幸福里平台处理。幸福里平台禁止经纪人/咨询师“返佣返现”,请您警惕。
反馈