省心挑好房,先上幸福里
立即打开
1/9
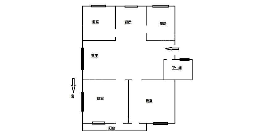
3室2厅 横河南新村
反馈
南北通透
有电梯
临近学校
150万
售价
3室2厅
房型
103平
建筑面积
单价
14563元/平
挂牌
2021-04-09
楼层
高楼层/共7层
朝向
南北
装修
简装修
电梯
有电梯
类型
住宅
小区
横河南新村(鹿城-蒲鞋)
提示
签订正式租房/购房合同前切勿支付任何费用
21世纪不动产官方提供
关注房源动态,掌握一手信息
关注动态
周边配套
详情
位置
横河南路
交通
教育
医疗
生活
休闲
温州火车站(在建S3号线)
2.5km
龙霞路(S1线)
2.7km
附二医本部2(28路夜班)
517m
横河南新村
详情
免责声明:房源所示图片及其他信息仅供参考,购房时请以房本信息为准。图片、VR等房屋信息由房源发布机构发布,如有侵权等情况,请在房源展示图片右下侧点击“反馈”联系幸福里平台处理。幸福里平台禁止经纪人/咨询师“返佣返现”,请您警惕。
反馈