选好房,就上幸福里找房
立即打开
VR
图片
1/19
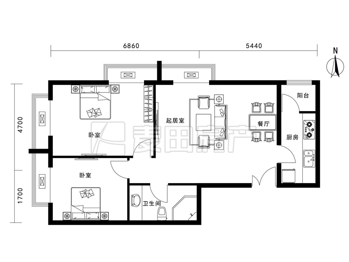
2室1厅 尚峰尚水(尚水园)
反馈
有电梯
210万
售价
2室1厅
房型
89.27平
建筑面积
单价
23524元/平
挂牌
2026-01-31
楼层
中楼层/共10层
朝向
西北
装修
精装修
电梯
有电梯
楼型
板楼
类型
住宅
权属
商品房
年代
2014年
小区
尚峰尚水(尚水园)(海淀-温泉镇)
点评
所在小区2位业主分享真实入住感受
提示
签订正式租房/购房合同前切勿支付任何费用
麦田房产店官方提供
关注房源动态,掌握一手信息
关注动态
周边配套
详情
位置
显龙山路与白家疃路交叉口西南200米
交通
教育
医疗
生活
休闲
稻香湖路(16号线)
2.5km
温泉苗圃(330路;346路;448路;448路地铁稻香湖路站北;651路;908路)
964m
温泉墓园(温泉墓园临时扫墓专线)
2.8km
尚峰尚水(尚水园)
详情
小区行情周报
详情
持平
咨询小区历史成交价
去咨询
免责声明:房源所示图片及其他信息仅供参考,购房时请以房本信息为准。图片、VR等房屋信息由房源发布机构发布,如有侵权等情况,请在房源展示图片右下侧点击“反馈”联系幸福里找房平台处理。幸福里找房平台禁止经纪人/咨询师“返佣返现”,请您警惕。
反馈