选好房,就上幸福里找房
立即打开
1/10

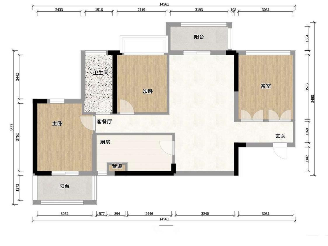
3室2厅 星河天街帝景湾

品质改善
南北通透
有电梯
楼龄新
60万
售价
3室2厅
房型
101平
建筑面积
九鼎房产官方提供

周边配套

详情
位置
槐荫大道
交通
教育
医疗
生活
休闲
槐荫大道董永路口(18路)
370m
鑫火国际(11路)
740m
仙女湖路口(孝武大道)(10路)
1.4km
免责声明:房源所示图片及其他信息仅供参考,购房时请以房本信息为准。图片、VR等房屋信息由房源发布机构发布,如有侵权等情况,请在房源展示图片右下侧点击“反馈”联系幸福里找房平台处理。幸福里找房平台禁止经纪人/咨询师“返佣返现”,请您警惕。反馈