选好房,就上幸福里找房
立即打开
1/9
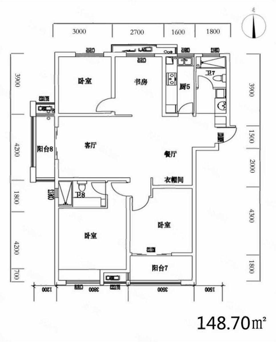
3室2厅 汇川大象城
反馈
南北通透
有电梯
59.8万
售价
3室2厅
房型
118.4平
建筑面积
单价
5050元/平
挂牌
2025-12-15
楼层
中楼层/共27层
朝向
南北
装修
精装修
电梯
有电梯
楼型
板楼
类型
住宅
权属
商品房
年代
2015年
小区
汇川大象城(邳州-邳州)
提示
签订正式租房/购房合同前切勿支付任何费用
汉恒房产官方提供
关注房源动态,掌握一手信息
关注动态
周边配套
详情
位置
瑞兴南路与邳新路交叉口南150米
交通
教育
医疗
生活
休闲
大运河装饰城(停运邳州C105路;邳州17路;邳州2路东行;邳州2路西行)
318m
消防大队(邳州17路;邳州7路)
414m
光明桥(停运邳州11路;邳州10路;邳州16路;邳州19路;邳州50路;邳州9路)
563m
汇川大象城
详情
小区行情周报
详情
持平
咨询小区历史成交价
去咨询
免责声明:房源所示图片及其他信息仅供参考,购房时请以房本信息为准。图片、VR等房屋信息由房源发布机构发布,如有侵权等情况,请在房源展示图片右下侧点击“反馈”联系幸福里找房平台处理。幸福里找房平台禁止经纪人/咨询师“返佣返现”,请您警惕。
反馈