省心挑好房,先上幸福里
立即打开
1/13
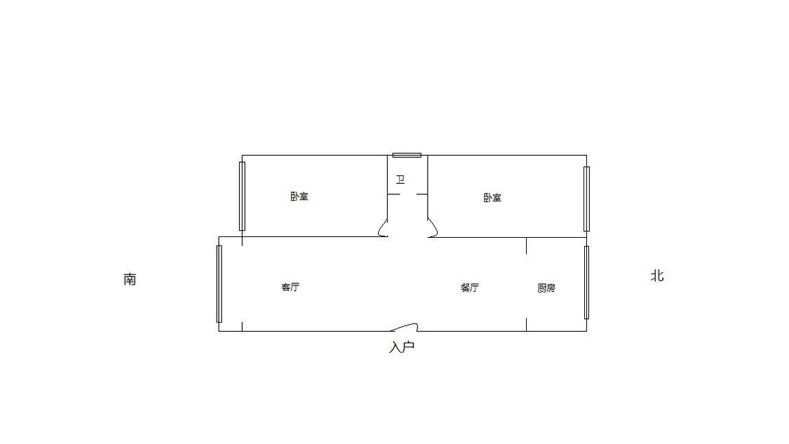
2室1厅 信合湖畔春天(二期)
反馈
南北通透
满五年
33.8万
售价
2室1厅
房型
100平
建筑面积
单价
3380元/平
挂牌
2025-12-06
楼层
低楼层/共6层
朝向
南北
装修
简装修
电梯
无电梯
楼型
板楼
类型
住宅
权属
商品房
小区
信合湖畔春天(二期)(固始-固始)
提示
签订正式租房/购房合同前切勿支付任何费用
固始宜居房产官方提供
关注房源动态,掌握一手信息
关注动态
周边配套
详情
位置
凤凰大道与红叉苏大道交叉口市西面北200米
交通
教育
医疗
生活
休闲
湖畔春天三期(固始7路)
815m
信合公园壹号院(固始1路;固始7路)
932m
信合大道口(固始301路)
1.1km
信合湖畔春天(二期)
详情
小区行情周报
详情
持平
咨询小区历史成交价
去咨询
免责声明:房源所示图片及其他信息仅供参考,购房时请以房本信息为准。图片、VR等房屋信息由房源发布机构发布,如有侵权等情况,请在房源展示图片右下侧点击“反馈”联系幸福里平台处理。幸福里平台禁止经纪人/咨询师“返佣返现”,请您警惕。
反馈