省心挑好房,先上幸福里
立即打开
1/10

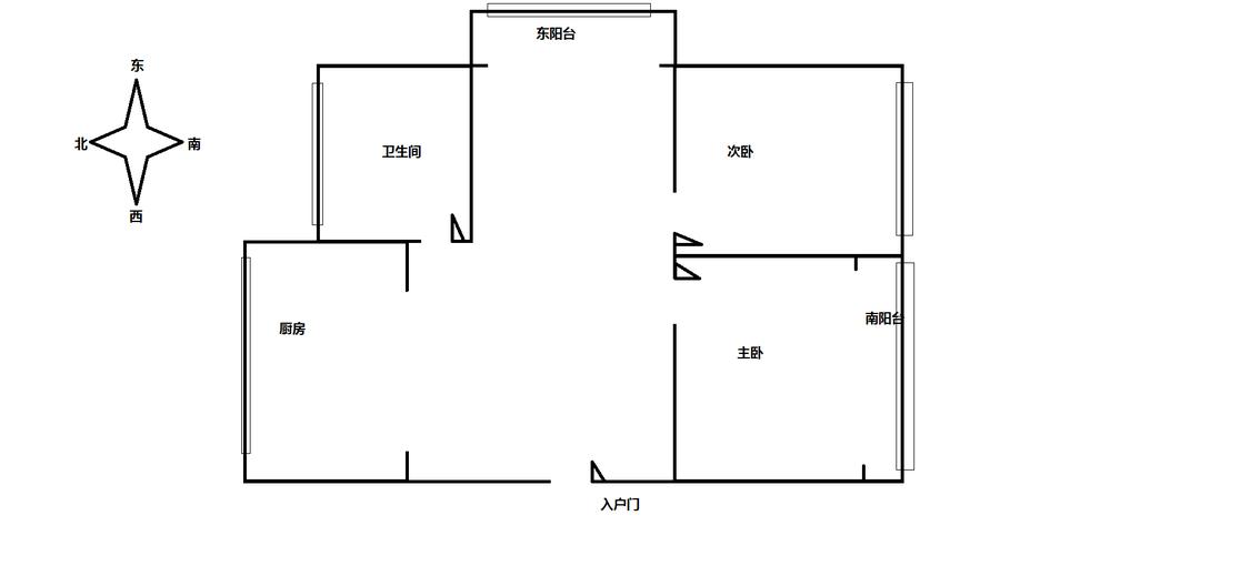
2室2厅 信合湖畔春天(二期)

南北通透
满五年
26万
售价
2室2厅
房型
75.82平
建筑面积
固始宜居房产官方提供

周边配套

详情
位置
凤凰大道与红叉苏大道交叉口市西面北200米
交通
教育
医疗
生活
休闲
湖畔春天三期(固始7路)
815m
信合公园壹号院(固始1路;固始7路)
932m
信合大道口(固始301路)
1.1km

小区行情周报

详情
持平
咨询小区历史成交价
去咨询
免责声明:房源所示图片及其他信息仅供参考,购房时请以房本信息为准。图片、VR等房屋信息由房源发布机构发布,如有侵权等情况,请在房源展示图片右下侧点击“反馈”联系幸福里平台处理。幸福里平台禁止经纪人/咨询师“返佣返现”,请您警惕。反馈