选好房,就上幸福里找房
立即打开
1/11
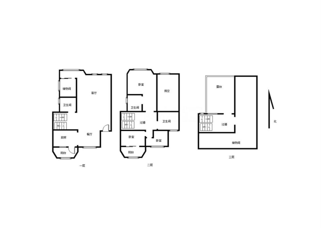
5室2厅 IOI园博湾
反馈
满五年
临近地铁
临近学校
388万
售价
5室2厅
房型
175.14平
建筑面积
单价
22153元/平
挂牌
2025-11-29
楼层
中楼层/共4层
朝向
东北
装修
毛坯
电梯
无电梯
楼型
板楼
类型
住宅
权属
商品房
年代
2015年
小区
IOI园博湾(集美-集美新城)
提示
签订正式租房/购房合同前切勿支付任何费用
广厦源住房租赁官方提供
关注房源动态,掌握一手信息
关注动态
周边配套
详情
位置
园博六里1-43号
交通
教育
医疗
生活
休闲
官任(1号线)
840m
诚毅广场(1号线)
1.8km
杏滨(在建6号线)
2.8km
IOI园博湾
详情
小区行情周报
详情
持平
咨询小区历史成交价
去咨询
免责声明:房源所示图片及其他信息仅供参考,购房时请以房本信息为准。图片、VR等房屋信息由房源发布机构发布,如有侵权等情况,请在房源展示图片右下侧点击“反馈”联系幸福里找房平台处理。幸福里找房平台禁止经纪人/咨询师“返佣返现”,请您警惕。
反馈