选好房,就上幸福里找房
立即打开
1/16
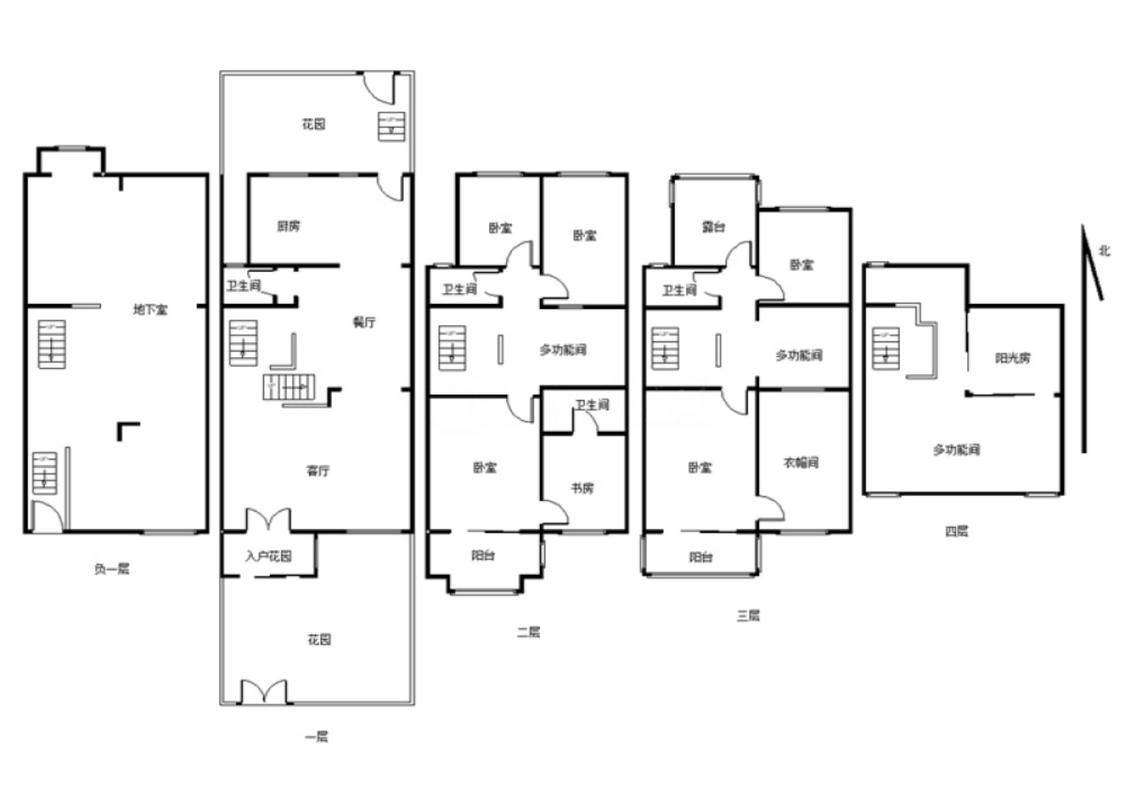
7室3厅 中海寰宇天下
反馈
满五年
临近地铁
临近学校
969万
售价
7室3厅
房型
230.31平
建筑面积
单价
42073元/平
挂牌
2025-11-19
楼层
低楼层/共3层
朝向
南
装修
精装修
电梯
无电梯
楼型
板楼
类型
住宅
权属
商品房
年代
2013年
小区
中海寰宇天下(集美-杏滨路)
提示
签订正式租房/购房合同前切勿支付任何费用
德行天厦房产官方提供
关注房源动态,掌握一手信息
关注动态
周边配套
详情
位置
杏滨路与杏东路交叉口东南侧
交通
教育
医疗
生活
休闲
杏滨(在建6号线)
2.1km
宁海二里站(908路;930路;996路;J192路)
687m
杏东小学站(908路;930路;996路;J192路)
741m
中海寰宇天下
详情
小区行情周报
详情
持平
咨询小区历史成交价
去咨询
免责声明:房源所示图片及其他信息仅供参考,购房时请以房本信息为准。图片、VR等房屋信息由房源发布机构发布,如有侵权等情况,请在房源展示图片右下侧点击“反馈”联系幸福里找房平台处理。幸福里找房平台禁止经纪人/咨询师“返佣返现”,请您警惕。
反馈