选好房,就上幸福里找房
立即打开
1/15
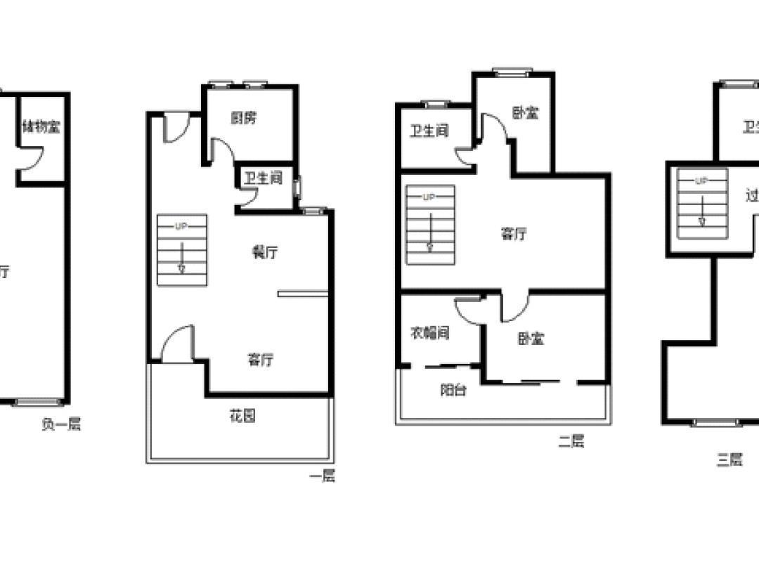
4室2厅 莫奈庄园
反馈
品质改善
满五年
别墅
临近学校
2030万
售价
4室2厅
房型
299平
建筑面积
单价
67892元/平
挂牌
2023-04-23
楼层
低楼层/共3层
朝向
南
装修
精装修
电梯
无电梯
类型
别墅
权属
商品房
小区
莫奈庄园(浦东-周浦)
提示
签订正式租房/购房合同前切勿支付任何费用
永轩地产官方提供
关注房源动态,掌握一手信息
关注动态
周边配套
详情
位置
周园路666号
交通
教育
医疗
生活
休闲
周浦(沪南公路民生银行旁)
2.3km
秀沿路(11号线)
2.4km
秀沿路地铁站停车场(罗山南路秀沿路地铁站1号口北20米)
2.5km
莫奈庄园
详情
小区行情周报
详情
持平
咨询小区历史成交价
去咨询
免责声明:房源所示图片及其他信息仅供参考,购房时请以房本信息为准。图片、VR等房屋信息由房源发布机构发布,如有侵权等情况,请在房源展示图片右下侧点击“反馈”联系幸福里找房平台处理。幸福里找房平台禁止经纪人/咨询师“返佣返现”,请您警惕。
反馈