选好房,就上幸福里找房
立即打开
1/13
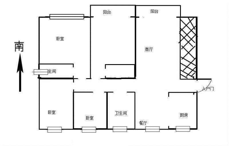
4室2厅 安建九坊世家
反馈
南北通透
有电梯
满两年
临近学校
59万
售价
4室2厅
房型
123平
建筑面积
单价
4796元/平
挂牌
2025-10-29
楼层
低楼层/共34层
朝向
南北
装修
毛坯
电梯
有电梯
类型
住宅
权属
商品房
小区
安建九坊世家(颍东-颍东)
提示
签订正式租房/购房合同前切勿支付任何费用
民安房产官方提供
关注房源动态,掌握一手信息
关注动态
周边配套
详情
位置
振兴路,幸福东路
交通
教育
医疗
生活
休闲
东湖世纪城二期(67路)
462m
东湖世纪城(东盛路50号方圆荟·世纪金源购物中心F1层)
822m
市医院岳家湖院区(67路;K23路;公交旅游3号线)
992m
安建九坊世家
详情
小区行情周报
详情
持平
咨询小区历史成交价
去咨询
免责声明:房源所示图片及其他信息仅供参考,购房时请以房本信息为准。图片、VR等房屋信息由房源发布机构发布,如有侵权等情况,请在房源展示图片右下侧点击“反馈”联系幸福里找房平台处理。幸福里找房平台禁止经纪人/咨询师“返佣返现”,请您警惕。
反馈