省心挑好房,先上幸福里
立即打开
1/8
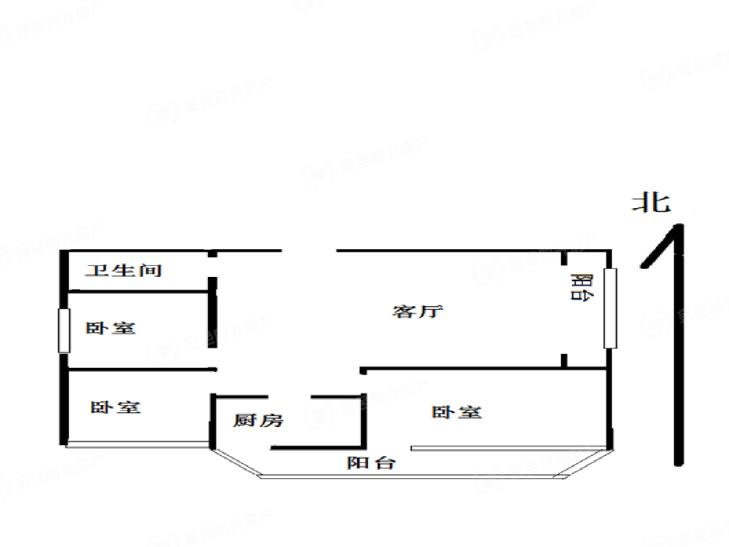
3室1厅 南竺园
反馈
南北通透
415万
售价
3室1厅
房型
104平
建筑面积
单价
39903元/平
挂牌
2025-09-06
楼层
中楼层/共6层
朝向
南北
装修
精装修
电梯
无电梯
楼型
塔楼
类型
住宅
权属
商品房
小区
南竺园(顺义-机场附近)
点评
所在小区8位业主分享真实入住感受
提示
签订正式租房/购房合同前切勿支付任何费用
金色时光官方提供
关注房源动态,掌握一手信息
关注动态
周边配套
详情
位置
小天竺西路以东
交通
教育
医疗
生活
休闲
3号航站楼(首都机场线)
2.3km
天竺西站(359路;640路)
796m
东平里(000路;955路)
1.3km
南竺园
详情
小区行情周报
详情
持平
咨询小区历史成交价
去咨询
小区实勘测评
详情
7.7
综合评分“良好”
区位价值
7.4
产品价值
7.5
配套价值
8.0
交易价值
8.0
1、小区容积率低,人均能享有的公共设施更为充足。小区内多为常住居民,人口流动性小,社区人员结构较为稳定,居住氛围较为和谐。 2、小区的便民设施较为丰富,社区活动中心、养老助残服务站、社区人民调解委员会等场所,不仅丰富居民的业余生活,也提高了居民的安全感及幸福指数。 3、小区被列为北京市综合减灾示范社区,抗震系数高,减少了灾害发生时的风险,提高了居民的生命及人身财产安全。 4、小区户型种类较为丰富,一居至三居均有相应的户型,且一居的面积较小,入手价低,性价比高。
免责声明:房源所示图片及其他信息仅供参考,购房时请以房本信息为准。图片、VR等房屋信息由房源发布机构发布,如有侵权等情况,请在房源展示图片右下侧点击“反馈”联系幸福里平台处理。幸福里平台禁止经纪人/咨询师“返佣返现”,请您警惕。
反馈