省心挑好房,先上幸福里
立即打开
VR
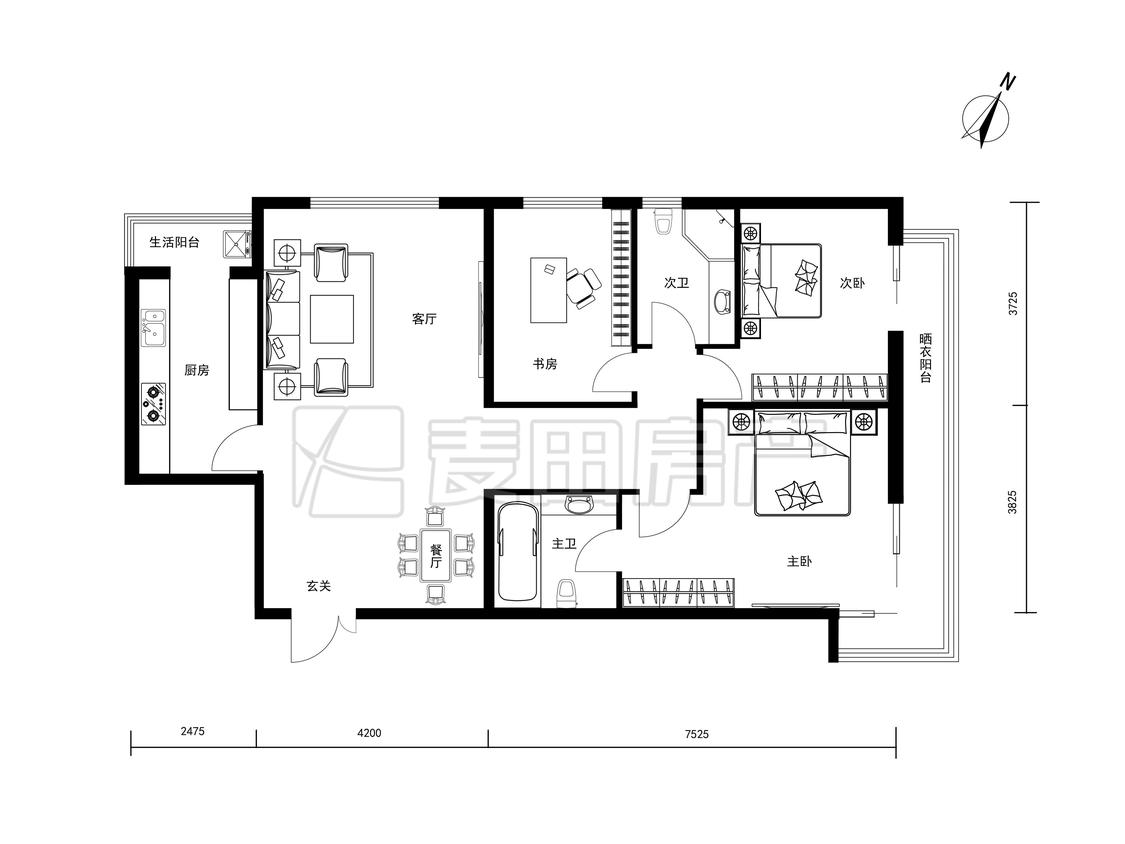
图片
1/22

周边配套

详情
位置
东四环北路88号
交通
教育
医疗
生活
休闲
石佛营(3号线)
565m
北京朝阳站(3号线)
1.3km
朝阳公园(在建3号线;14号线)
1.3km
免责声明:房源所示图片及其他信息仅供参考,购房时请以房本信息为准。图片、VR等房屋信息由房源发布机构发布,如有侵权等情况,请在房源展示图片右下侧点击“反馈”联系幸福里平台处理。幸福里平台禁止经纪人/咨询师“返佣返现”,请您警惕。反馈