省心挑好房,先上幸福里
立即打开
VR
图片
1/10
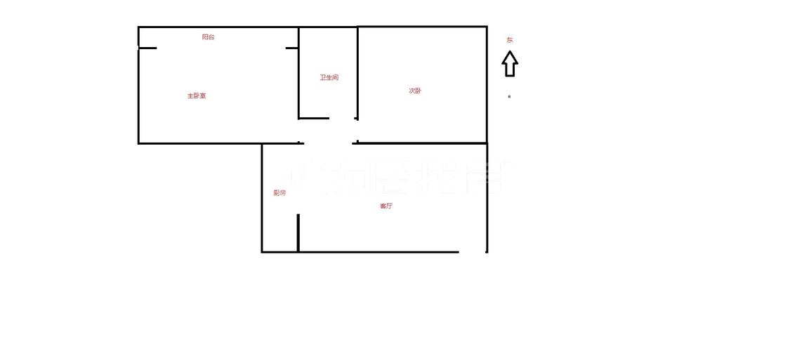
2室1厅 春晖小区(一期)
反馈
刚需优选
满两年
临近地铁
临近学校
37万
售价
2室1厅
房型
60平
建筑面积
单价
6166元/平
挂牌
2025-10-02
楼层
低楼层/共7层
朝向
东南
装修
简装修
电梯
无电梯
类型
住宅
权属
商品房
年代
2003年
小区
春晖小区(一期)(五华-丰宁)
提示
签订正式租房/购房合同前切勿支付任何费用
优居官方提供
关注房源动态,掌握一手信息
关注动态
周边配套
详情
位置
丰宁路2号
交通
教育
医疗
生活
休闲
梁家河(3号线)
727m
西苑(人民西路山灞大厦西南侧约110米)
1.3km
金鼎山北路(4号线)
1.5km
春晖小区(一期)
详情
小区行情周报
详情
持平
咨询小区历史成交价
去咨询
免责声明:房源所示图片及其他信息仅供参考,购房时请以房本信息为准。图片、VR等房屋信息由房源发布机构发布,如有侵权等情况,请在房源展示图片右下侧点击“反馈”联系幸福里平台处理。幸福里平台禁止经纪人/咨询师“返佣返现”,请您警惕。
反馈