省心挑好房,先上幸福里
立即打开
1/14
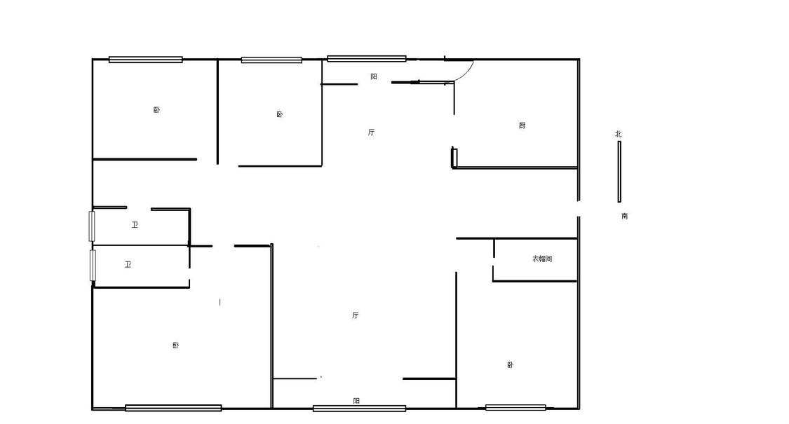
4室2厅 鑫亚公司家属院
反馈
南北通透
有电梯
140万
售价
4室2厅
房型
187平
建筑面积
单价
7486元/平
挂牌
2025-06-05
楼层
高楼层/共18层
朝向
南北
装修
简装修
电梯
有电梯
类型
住宅
年代
1998年
小区
鑫亚公司家属院(东昌府-市民文化中心)
提示
签订正式租房/购房合同前切勿支付任何费用
一诺房产官方提供
关注房源动态,掌握一手信息
关注动态
周边配套
详情
位置
东昌东路25号
交通
教育
医疗
生活
休闲
弘泰·御景王宅(K329路)
73m
翠苑小区(134路/K134路;K147路;K28路;K346路)
1.1km
人才大厦(602路;602路/K602路;K602路高墙村)
1.2km
鑫亚公司家属院
详情
小区行情周报
详情
持平
咨询小区历史成交价
去咨询
免责声明:房源所示图片及其他信息仅供参考,购房时请以房本信息为准。图片、VR等房屋信息由房源发布机构发布,如有侵权等情况,请在房源展示图片右下侧点击“反馈”联系幸福里平台处理。幸福里平台禁止经纪人/咨询师“返佣返现”,请您警惕。
反馈