省心挑好房,先上幸福里
立即打开
1/8
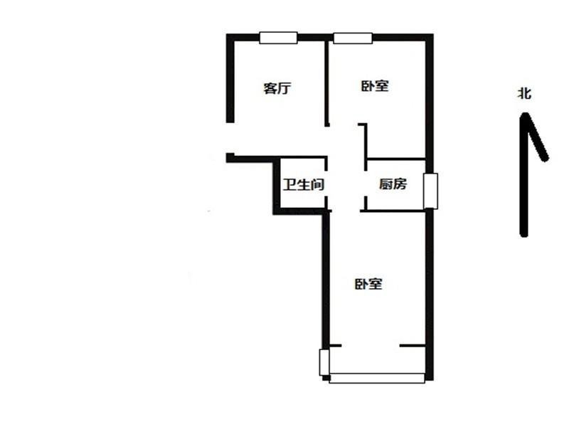
2室1厅 西平街一里
反馈
刚需优选
唯一住房
南北通透
满两年
148万
售价
2室1厅
房型
65.38平
建筑面积
单价
22636元/平
挂牌
2025-09-15
楼层
高楼层/共6层
朝向
南北
装修
精装修
电梯
无电梯
类型
住宅
权属
商品房
年代
1992年
小区
西平街一里(顺义-机场附近)
点评
所在小区2位业主分享真实入住感受
提示
签订正式租房/购房合同前切勿支付任何费用
金色时光地产官方提供
关注房源动态,掌握一手信息
关注动态
周边配套
详情
位置
北京国都大饭店南
交通
教育
医疗
生活
休闲
3号航站楼(首都机场线)
2.2km
天竺西站(359路;640路)
668m
东平里(000路;955路)
794m
西平街一里
详情
小区行情周报
详情
持平
咨询小区历史成交价
去咨询
免责声明:房源所示图片及其他信息仅供参考,购房时请以房本信息为准。图片、VR等房屋信息由房源发布机构发布,如有侵权等情况,请在房源展示图片右下侧点击“反馈”联系幸福里平台处理。幸福里平台禁止经纪人/咨询师“返佣返现”,请您警惕。
反馈