选好房,就上幸福里找房
立即打开
1/8
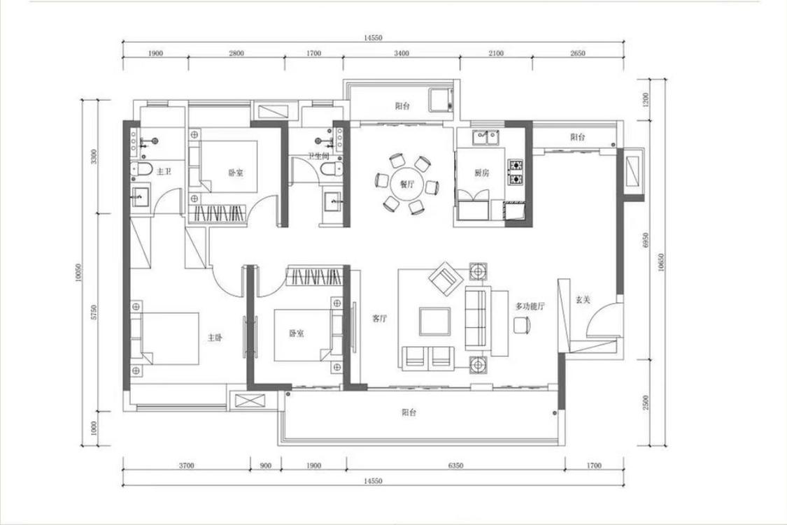
4室2厅 城际空间站
反馈
有电梯
75.8万
售价
4室2厅
房型
145.66平
建筑面积
单价
5203元/平
挂牌
2025-09-11
楼层
低楼层/共31层
朝向
其他
装修
毛坯
电梯
有电梯
权属
商品房
小区
城际空间站(江城-江城)
提示
签订正式租房/购房合同前切勿支付任何费用
万通地产官方提供
关注房源动态,掌握一手信息
关注动态
周边配套
详情
位置
江朗大道
交通
教育
医疗
生活
休闲
司朗村(停运5路)
2.5km
下军塘(10路;21路;东汇城至港口工业园定制公交专线)
2.7km
新都汇(6路)
2.7km
城际空间站
详情
小区行情周报
详情
持平
咨询小区历史成交价
去咨询
免责声明:房源所示图片及其他信息仅供参考,购房时请以房本信息为准。图片、VR等房屋信息由房源发布机构发布,如有侵权等情况,请在房源展示图片右下侧点击“反馈”联系幸福里找房平台处理。幸福里找房平台禁止经纪人/咨询师“返佣返现”,请您警惕。
反馈