选好房,就上幸福里找房
立即打开
1/21

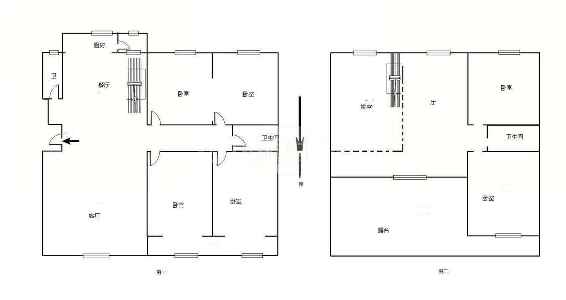
5室2厅 玉龙苑

品质改善
南北通透
有电梯
满五年
198万
售价
5室2厅
房型
278.83平
建筑面积
宛房通官方提供

周边配套

详情
位置
独山大道北段366号
交通
教育
医疗
生活
休闲
独山大道范蠡路口(13路)
100m
独山大道光武路口(103路;13路;19路/K19路;21路/K21路;35路;41路/K41路)
695m
天仁皮肤病医院(-南阳)
1.2km

小区行情周报

详情
持平
咨询小区历史成交价
去咨询
免责声明:房源所示图片及其他信息仅供参考,购房时请以房本信息为准。图片、VR等房屋信息由房源发布机构发布,如有侵权等情况,请在房源展示图片右下侧点击“反馈”联系幸福里找房平台处理。幸福里找房平台禁止经纪人/咨询师“返佣返现”,请您警惕。反馈