选好房,就上幸福里找房
立即打开
1/8
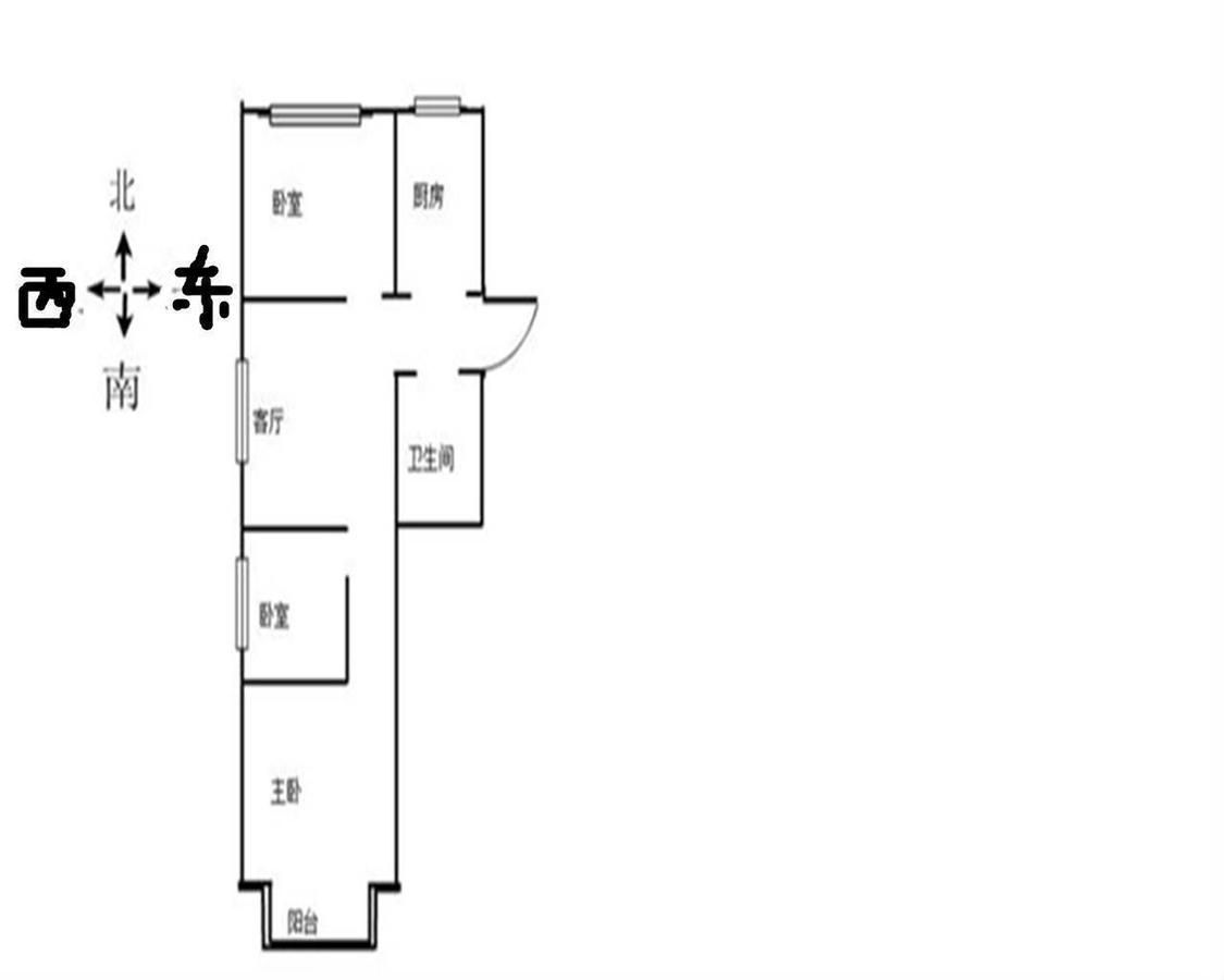
3室2厅 榕城世家
反馈
唯一住房
有电梯
75万
售价
3室2厅
房型
100平
建筑面积
单价
7500元/平
挂牌
2025-08-25
楼层
高楼层/共22层
朝向
南
装修
简装修
电梯
有电梯
类型
住宅
权属
商品房
小区
榕城世家(新华-新华)
提示
签订正式租房/购房合同前切勿支付任何费用
壹加贰房产官方提供
关注房源动态,掌握一手信息
关注动态
周边配套
详情
位置
千童南大道
交通
教育
医疗
生活
休闲
晨曦花园(停运夜2路;22路;307路;31路;321路;623路;T31路)
413m
火车站(10路;138路;13路;158路;16路;18路;19路;1路;219路;21路;22路;306路;321路;3路;402路;420路;505路;561路;604路;604路A;612路;613路;)
697m
第三中学(623路)
938m
榕城世家
详情
小区行情周报
详情
持平
咨询小区历史成交价
去咨询
免责声明:房源所示图片及其他信息仅供参考,购房时请以房本信息为准。图片、VR等房屋信息由房源发布机构发布,如有侵权等情况,请在房源展示图片右下侧点击“反馈”联系幸福里找房平台处理。幸福里找房平台禁止经纪人/咨询师“返佣返现”,请您警惕。
反馈