选好房,就上幸福里找房
立即打开
1/6

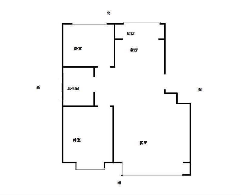
2室2厅 泰和世家(北区)

唯一住房
南北通透
有电梯
70万
售价
2室2厅
房型
102平
建筑面积
瑞德信地产官方提供

周边配套

详情
位置
暂无
交通
教育
医疗
生活
休闲
市政公司(11路;11路B;21路;226路;306路;333路;528路;夜4A路;夜班4线路)
764m
沧县公路管理站(902路)
929m
沧县税务局东院区(停运夜5A路;停运夜5路)
1.2km

小区行情周报

详情
持平
咨询小区历史成交价
去咨询
免责声明:房源所示图片及其他信息仅供参考,购房时请以房本信息为准。图片、VR等房屋信息由房源发布机构发布,如有侵权等情况,请在房源展示图片右下侧点击“反馈”联系幸福里找房平台处理。幸福里找房平台禁止经纪人/咨询师“返佣返现”,请您警惕。反馈