选好房,就上幸福里找房
立即打开
1/7
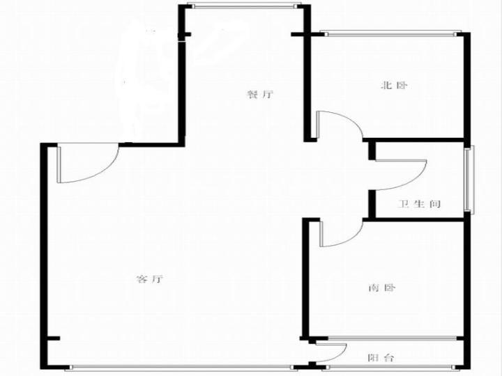
2室2厅 林山逸景
反馈
南北通透
70万
售价
2室2厅
房型
93平
建筑面积
单价
7526元/平
挂牌
2023-04-09
楼层
中楼层/共5层
朝向
南北
装修
精装修
电梯
无电梯
类型
住宅
年代
2006年
小区
林山逸景(旅顺口-长江路)
提示
签订正式租房/购房合同前切勿支付任何费用
大连瑞家地产官方提供
关注房源动态,掌握一手信息
关注动态
周边配套
详情
位置
向阳街153号
交通
教育
医疗
生活
休闲
旅顺(12号线)
2.7km
加油站(旅顺13路;旅顺28路)
488m
白云高中(旅顺13路;旅顺28路)
567m
林山逸景
详情
小区行情周报
详情
持平
咨询小区历史成交价
去咨询
免责声明:房源所示图片及其他信息仅供参考,购房时请以房本信息为准。图片、VR等房屋信息由房源发布机构发布,如有侵权等情况,请在房源展示图片右下侧点击“反馈”联系幸福里找房平台处理。幸福里找房平台禁止经纪人/咨询师“返佣返现”,请您警惕。
反馈