选好房,就上幸福里找房
立即打开
1/7

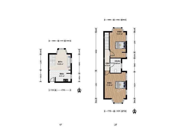
2室1厅 福晟钱隆广场

有电梯
临近地铁
920万
售价
2室1厅
房型
86.89平
建筑面积
我爱我家官方提供

周边配套

详情
位置
海阳西路杨思西路口
交通
教育
医疗
生活
休闲
东方体育中心(杨思西路前滩中心西北侧)
361m
前滩南(规划19号线)
511m
凌兆新村(南北高架路岭南苑西南侧约40米)
1.3km

小区行情周报

详情
持平
咨询小区历史成交价
去咨询
免责声明:房源所示图片及其他信息仅供参考,购房时请以房本信息为准。图片、VR等房屋信息由房源发布机构发布,如有侵权等情况,请在房源展示图片右下侧点击“反馈”联系幸福里找房平台处理。幸福里找房平台禁止经纪人/咨询师“返佣返现”,请您警惕。反馈