选好房,就上幸福里找房
立即打开
1/9

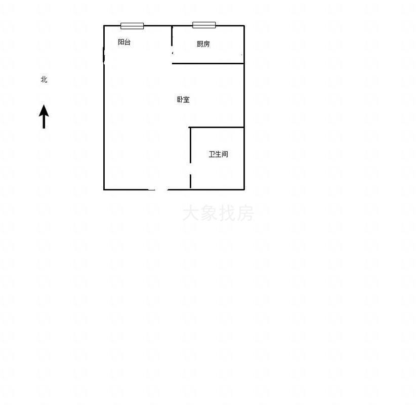
1室1厅 长江才苑

南北通透
有电梯
满两年
临近学校
39.8万
售价
1室1厅
房型
55平
建筑面积
大象找房官方提供

周边配套

详情
位置
长江路中段理工学院西隔壁
交通
教育
医疗
生活
休闲
枣林(13路;13路/K13路;24路/K24路;36路;40路/K40路;45路;4路/K4路;S207路;XY2路;XY3路;南阳-信阳;南阳-正阳)
229m
白河路仲景大桥西(7路/K7路)
1.0km
南阳广播电大(22路/K22路)
1.6km

小区行情周报

详情
持平
咨询小区历史成交价
去咨询
免责声明:房源所示图片及其他信息仅供参考,购房时请以房本信息为准。图片、VR等房屋信息由房源发布机构发布,如有侵权等情况,请在房源展示图片右下侧点击“反馈”联系幸福里找房平台处理。幸福里找房平台禁止经纪人/咨询师“返佣返现”,请您警惕。反馈