选好房,就上幸福里找房
立即打开
1/13

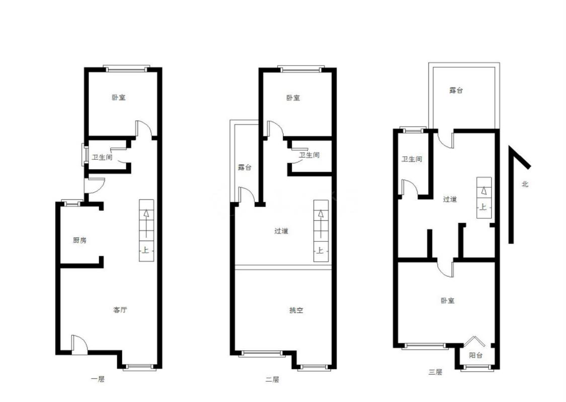
4室3厅 枫林天下

楼龄新
满两年
户型方正
268万
售价
4室3厅
房型
162.63平
建筑面积
铜山区共筑房产官方提供

周边配套

详情
位置
大学路徐林村
交通
教育
医疗
生活
休闲
第一人民医院(在建4号线)
303m
桥上村(在建4号线)
1.1km
湘江路(在建4号线)
1.6km

小区行情周报

详情
持平
咨询小区历史成交价
去咨询
免责声明:房源所示图片及其他信息仅供参考,购房时请以房本信息为准。图片、VR等房屋信息由房源发布机构发布,如有侵权等情况,请在房源展示图片右下侧点击“反馈”联系幸福里找房平台处理。幸福里找房平台禁止经纪人/咨询师“返佣返现”,请您警惕。反馈