省心挑好房,先上幸福里
立即打开
1/16
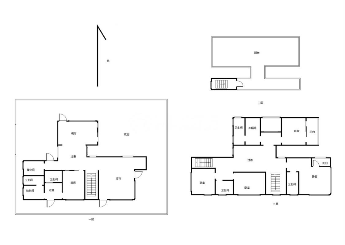
5室2厅 华发水郡(一期)
反馈
别墅
临近学校
841万
售价
5室2厅
房型
358平
建筑面积
单价
23491元/平
挂牌
2025-05-12
楼层
低楼层/共2层
朝向
南
装修
毛坯
电梯
无电梯
楼型
板楼
类型
别墅
权属
商品房
小区
华发水郡(一期)(斗门-井岸)
提示
签订正式租房/购房合同前切勿支付任何费用
高原地产官方提供
关注房源动态,掌握一手信息
关注动态
周边配套
详情
位置
珠峰大道288号
交通
教育
医疗
生活
休闲
湾德虹大酒店(停运机场大巴斗门线)
962m
德虹大酒店(机场大巴斗门线)
971m
群兴(Z278路;Z279路)
1.5km
华发水郡(一期)
详情
小区行情周报
详情
持平
咨询小区历史成交价
去咨询
免责声明:房源所示图片及其他信息仅供参考,购房时请以房本信息为准。图片、VR等房屋信息由房源发布机构发布,如有侵权等情况,请在房源展示图片右下侧点击“反馈”联系幸福里平台处理。幸福里平台禁止经纪人/咨询师“返佣返现”,请您警惕。
反馈