省心挑好房,先上幸福里
立即打开
1/4
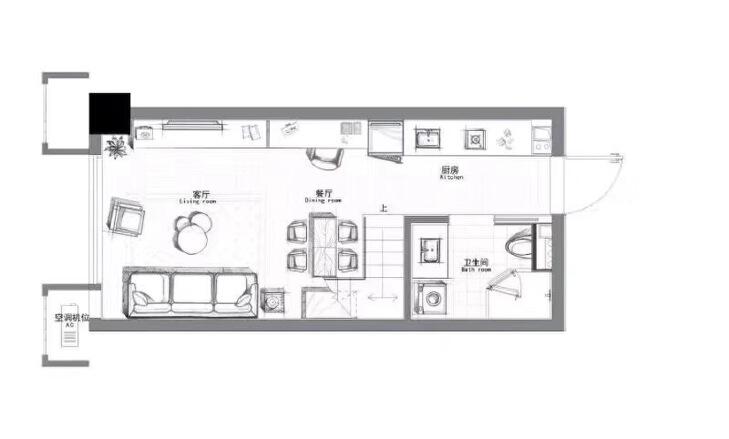
2室0厅 绿地环球文化金融城
反馈
刚需优选
抢手房源
有电梯
临近地铁
189.99万
售价
2室0厅
房型
58平
建筑面积
单价
32756元/平
挂牌
2025-03-03
楼层
高楼层/共23层
朝向
南
装修
精装修
电梯
有电梯
楼型
塔楼
权属
商品房
小区
绿地环球文化金融城(石景山-古城)
点评
所在小区1位业主分享真实入住感受
提示
签订正式租房/购房合同前切勿支付任何费用
嘉弘伟业官方提供
关注房源动态,掌握一手信息
关注动态
周边配套
详情
位置
古城南街9号院
交通
教育
医疗
生活
休闲
古城(1号线/八通线)
550m
体育场南街(在建1号线支线)
2.0km
八角游乐园(石景山路北京市石景山医院北侧)
2.4km
绿地环球文化金融城
详情
小区行情周报
详情
持平
咨询小区历史成交价
去咨询
免责声明:房源所示图片及其他信息仅供参考,购房时请以房本信息为准。图片、VR等房屋信息由房源发布机构发布,如有侵权等情况,请在房源展示图片右下侧点击“反馈”联系幸福里平台处理。幸福里平台禁止经纪人/咨询师“返佣返现”,请您警惕。
反馈