选好房,就上幸福里找房
立即打开
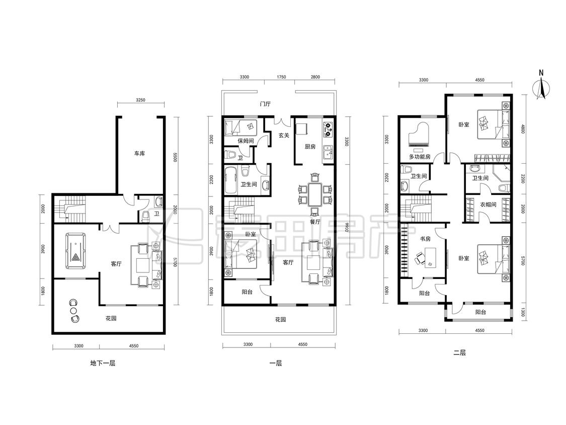
VR
图片
1/25

周边配套

详情
位置
白家疃西路与叠风路交叉口
交通
教育
医疗
生活
休闲
稻香湖路(16号线)
2.6km
温泉苗圃(330路;346路;448路;448路地铁稻香湖路站北;651路;908路)
782m
温泉墓园(温泉墓园临时扫墓专线)
2.6km

小区行情周报

详情
持平
咨询小区历史成交价
去咨询
免责声明:房源所示图片及其他信息仅供参考,购房时请以房本信息为准。图片、VR等房屋信息由房源发布机构发布,如有侵权等情况,请在房源展示图片右下侧点击“反馈”联系幸福里找房平台处理。幸福里找房平台禁止经纪人/咨询师“返佣返现”,请您警惕。反馈