省心挑好房,先上幸福里
立即打开
1/17
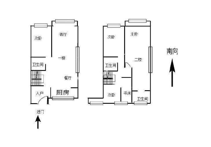
5室2厅 新希望白麓城(郦璟苑)
反馈
南北通透
有电梯
临近地铁
绿化率高
165万
售价
5室2厅
房型
115.68平
建筑面积
单价
14263元/平
挂牌
2025-03-18
楼层
高楼层/共31层
朝向
南北
装修
精装修
电梯
有电梯
类型
住宅
权属
商品房
小区
新希望白麓城(郦璟苑)(五华-泛亚科技新区)
提示
签订正式租房/购房合同前切勿支付任何费用
昆明新亚企航官方提供
关注房源动态,掌握一手信息
关注动态
周边配套
详情
位置
萃源路6号
交通
教育
医疗
生活
休闲
金川路(4号线)
574m
大河埂(4号线)
930m
海屯路(高新小屯汽车城)
2.7km
新希望白麓城(郦璟苑)
详情
小区行情周报
详情
持平
咨询小区历史成交价
去咨询
免责声明:房源所示图片及其他信息仅供参考,购房时请以房本信息为准。图片、VR等房屋信息由房源发布机构发布,如有侵权等情况,请在房源展示图片右下侧点击“反馈”联系幸福里平台处理。幸福里平台禁止经纪人/咨询师“返佣返现”,请您警惕。
反馈