省心挑好房,先上幸福里
立即打开
1/16
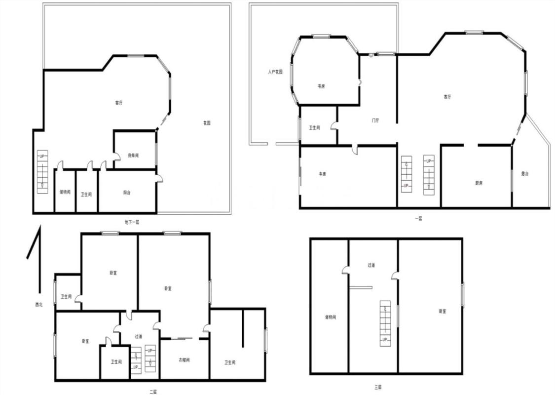
5室3厅 常青藤
反馈
别墅
绿化率高
780万
售价
5室3厅
房型
377平
建筑面积
单价
20689元/平
挂牌
2025-02-28
楼层
低楼层/共3层
朝向
东南
装修
精装修
电梯
无电梯
楼型
板楼
类型
别墅
权属
商品房
小区
常青藤(渝北-农业园区)
提示
签订正式租房/购房合同前切勿支付任何费用
安渝橙家官方提供
关注房源动态,掌握一手信息
关注动态
周边配套
详情
位置
果塘路197号
交通
教育
医疗
生活
休闲
果塘路(在建15号线一期)
904m
西南政法大学(在建15号线一期)
1.5km
三亚湾(金石大道三亚湾水产综合交易市场)
1.8km
常青藤
详情
小区行情周报
详情
持平
咨询小区历史成交价
去咨询
免责声明:房源所示图片及其他信息仅供参考,购房时请以房本信息为准。图片、VR等房屋信息由房源发布机构发布,如有侵权等情况,请在房源展示图片右下侧点击“反馈”联系幸福里平台处理。幸福里平台禁止经纪人/咨询师“返佣返现”,请您警惕。
反馈