省心挑好房,先上幸福里
立即打开
1/7
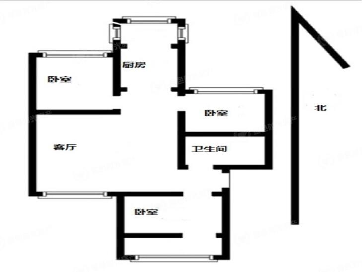
3室1厅 华英园(顺义)
反馈
南北通透
临近地铁
临近学校
320万
售价
3室1厅
房型
104平
建筑面积
单价
30769元/平
挂牌
2025-02-25
楼层
高楼层/共6层
朝向
南北
装修
简装修
电梯
无电梯
楼型
塔楼
类型
住宅
权属
商品房
小区
华英园(顺义)(顺义-机场附近)
点评
所在小区9位业主分享真实入住感受
提示
签订正式租房/购房合同前切勿支付任何费用
金色时光官方提供
关注房源动态,掌握一手信息
关注动态
周边配套
详情
位置
顺于路北120米
交通
教育
医疗
生活
休闲
南法信(南焦路天博中心东北侧约70米)
897m
石门(顺于路聚乐汇东北侧约30米)
1.8km
顺义二中(顺18路;顺18路A;顺18路区间;顺29路;顺36路;顺36路区间)
937m
华英园(顺义)
详情
小区行情周报
详情
持平
咨询小区历史成交价
去咨询
免责声明:房源所示图片及其他信息仅供参考,购房时请以房本信息为准。图片、VR等房屋信息由房源发布机构发布,如有侵权等情况,请在房源展示图片右下侧点击“反馈”联系幸福里平台处理。幸福里平台禁止经纪人/咨询师“返佣返现”,请您警惕。
反馈