选好房,就上幸福里找房
立即打开
1/28
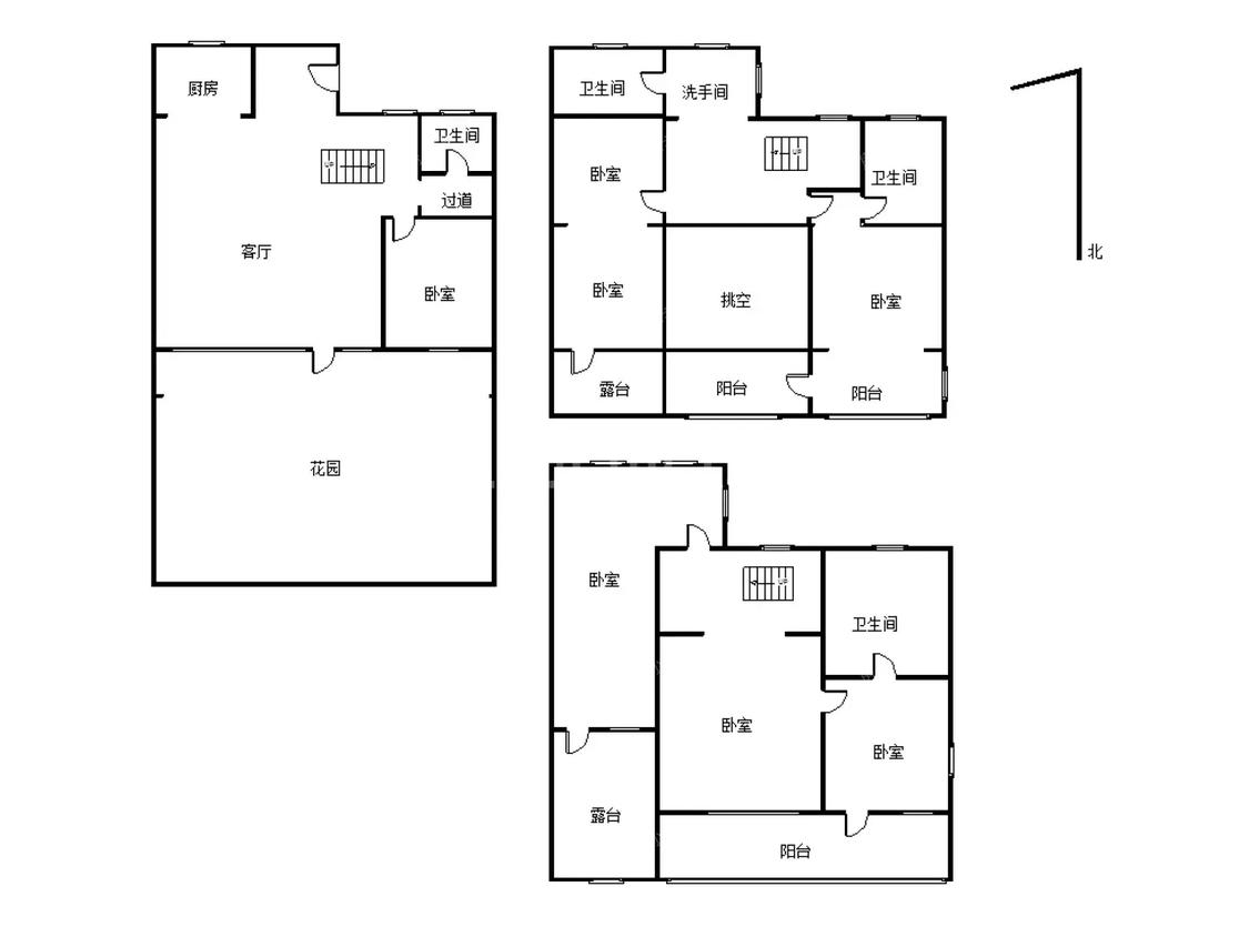
5室2厅 龙城华府(高新)
反馈
降
40.0万
高新
540万
售价
5室2厅
房型
230平
建筑面积
单价
23478元/平
挂牌
2025-02-20
楼层
低楼层/共1层
朝向
南
电梯
无电梯
类型
住宅
权属
商品房
小区
龙城华府(高新)(兖州-高新)
提示
签订正式租房/购房合同前切勿支付任何费用
房小主联卖官方提供
关注房源动态,掌握一手信息
关注动态
周边配套
详情
位置
广安路
交通
教育
医疗
生活
休闲
高新区大学园北门(临时站)(35路/35路西线)
1.6km
联合电子工业园(39路;91路)
1.7km
天虹纺织(B1路;C601路;C605路;C620路;J961路)
1.9km
龙城华府(高新)
详情
小区行情周报
详情
持平
咨询小区历史成交价
去咨询
免责声明:房源所示图片及其他信息仅供参考,购房时请以房本信息为准。图片、VR等房屋信息由房源发布机构发布,如有侵权等情况,请在房源展示图片右下侧点击“反馈”联系幸福里找房平台处理。幸福里找房平台禁止经纪人/咨询师“返佣返现”,请您警惕。
反馈