选好房,就上幸福里找房
立即打开
1/16
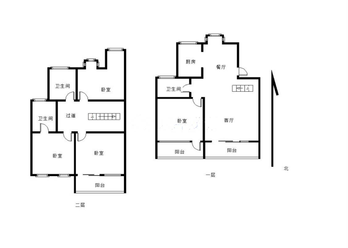
4室2厅 白鹭湖庄园(沁园)
反馈
别墅
185万
售价
4室2厅
房型
188平
建筑面积
单价
9840元/平
挂牌
2024-12-23
楼层
低楼层/共3层
朝向
南
装修
其他
电梯
无电梯
楼型
板楼
类型
别墅
权属
商品房
小区
白鹭湖庄园(沁园)(清江浦-白鹭湖)
提示
签订正式租房/购房合同前切勿支付任何费用
兴淮房产官方提供
关注房源动态,掌握一手信息
关注动态
周边配套
详情
位置
水渡口大道108号
交通
教育
医疗
生活
休闲
百富汽配城(91路区间)
715m
金辉城(古河口大街88号)
1.1km
金象传动(钵池街道)
1.4km
白鹭湖庄园(沁园)
详情
免责声明:房源所示图片及其他信息仅供参考,购房时请以房本信息为准。图片、VR等房屋信息由房源发布机构发布,如有侵权等情况,请在房源展示图片右下侧点击“反馈”联系幸福里找房平台处理。幸福里找房平台禁止经纪人/咨询师“返佣返现”,请您警惕。
反馈